Chalet Les Terrasses in the snow at Val d'Isère

Top of Fornet: Sun, Views & Ski.

Les Terrasses

Discover the charm of one of Val d’Isère’s sunniest areas. Enjoy spectacular views over the valley, just 80 m from the Fornet cable car departure.
The perfect setting for mountain lovers.

Scroll

Altitude and views as a way of life

Les Terrasses — Val d'Isère

Ideal for vacations with family or friends, this chalet offers peace and quiet, comfort, plenty of sunshine, and a panoramic south-facing view of the entire valley. Completely renovated by a renowned architect in 2024, it is located in one of the sunniest areas of Val d'Isère, at the top of the hamlet of Le Fornet.

The chalet is less than a 3-minute walk (80 m) from the Fornet cable car, offering you direct and quick access to the glacier via the new Vallons Gondola. The town centre is accessible during the day with a free shuttle every 5 minutes.
Amenities include a gym and sauna reserved for the chalet, a heated ski room, a covered garage beneath the chalet, and a “playground” area on the ground floor.

Access
Opposite the Fornet gondola
Terraces
Terraces at the top of Le Fornet, including the highest terrace in Val d'Isère
Views
Panoramic full south over the entire valley
Height
Top of Le Fornet · 1960 m
Architecture

A prestigious chalet at nearly 2,000 m altitude

Located in the highest part of Le Fornet at almost 2,000 m altitude, Chalet Les Terrasses is a 400-square-meter home with a south-facing view, renovated in 2024 by a renowned local architect. The chalet offers panoramic views across the valley from every living level and most bedrooms.

01
Ski Access & Location

Ski-in convenience at Le Fornet

Just 80 meters away, take the Fornet cable car and reach the Pissaillas Glacier in less than 15 minutes via the new Vallons gondola, making the most of your time in the Val d'Isère–Tignes ski area.

Chalet views and location
02
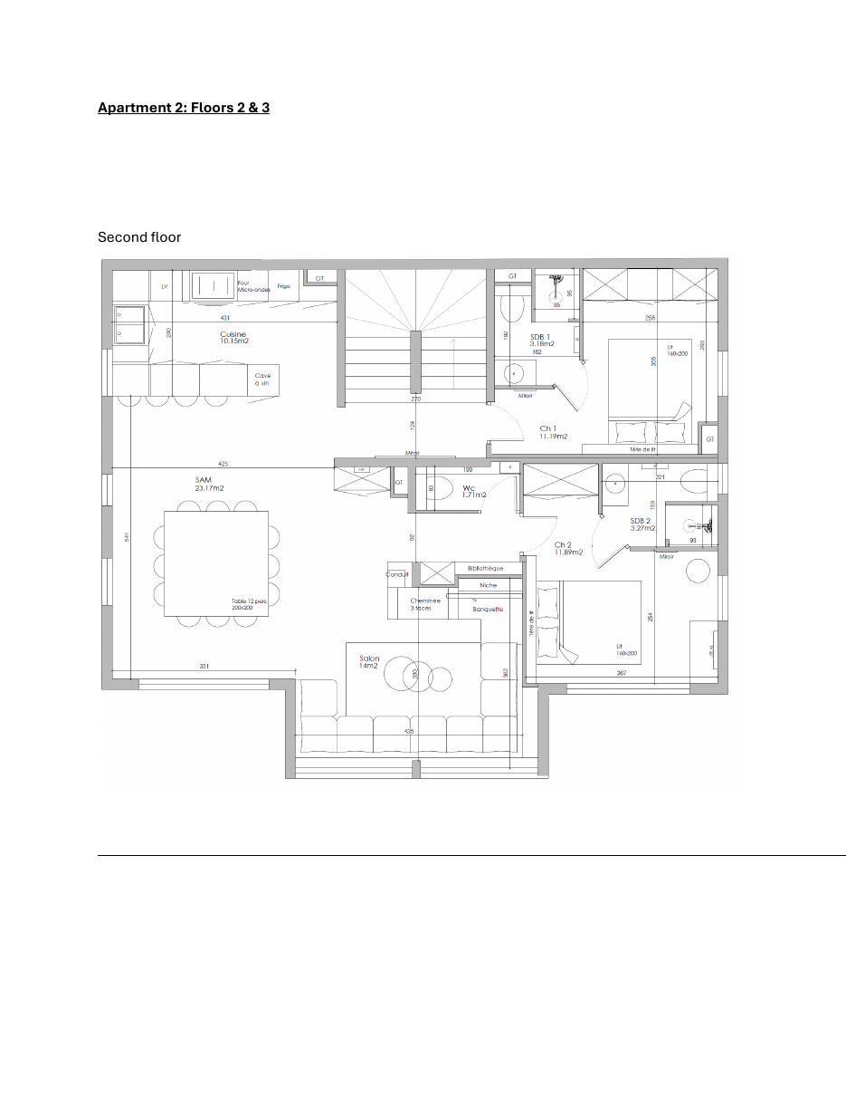
First Floor · Families & Privacy

Second living and dining level

A living area with a kitchen and fireplace, perfect for families or groups of friends looking for privacy. Three queen-size bedrooms, each with its own private bathroom, and a large south-facing terrace.

First-floor bedroom
03
Second Floor · Living & Reception

Main social level

A cozy living space where everyone can gather, featuring a bar, a fireplace, a dining room, and a high-end kitchen that opens onto a large, sunny terrace. Two queen-size bedrooms with private bathrooms.

Second-floor living area
04
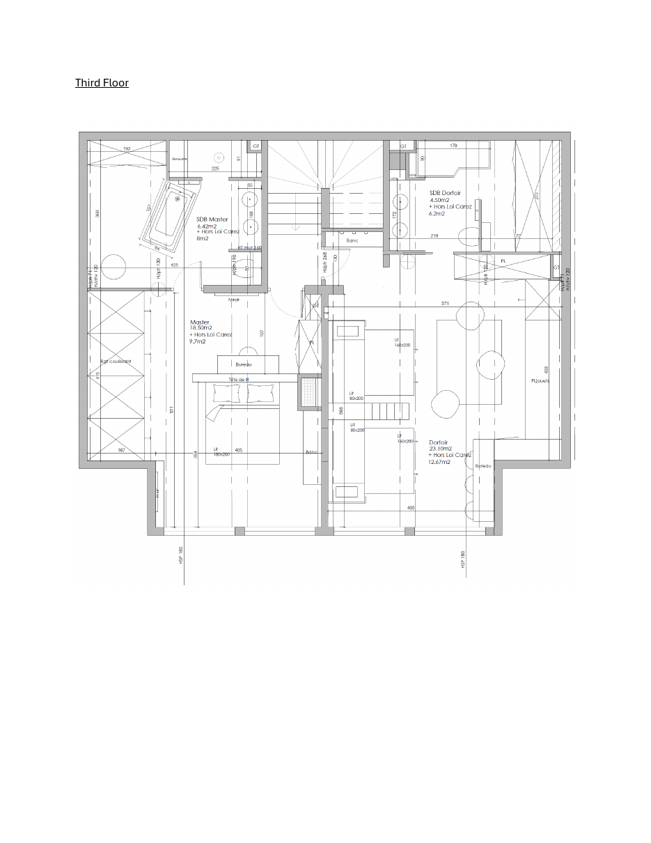
Third Floor · Parental Space

Parental suite & kids room

A master suite with king-size bed, ensuite bathroom and private south-facing panoramic terrace. A large children's room with two queen-size beds and two single beds completes this level, also with ensuite bathroom.

Third-floor parental suite

Plans provided on request when booking your stay

Amenities

Luxury for the love of the mountains

Panoramic outdoor jacuzzi
On the first level, a large south-facing panoramic terrace features an outdoor jacuzzi overlooking the whole valley.
Gym, sauna & playground
On the ground floor: an equipped gym and sauna, with direct access to a snowy outdoor play area.
Premium access & heated ski room
Avoid the snow. A private, secure underground passage lets you reach the Fornet cable car while staying dry, with heated ski lockers for easy ski-in, ski-out access.
Secure private parking
Secure private garage with 2 large parking spaces.
High-speed Wi-Fi
High-speed internet connection throughout the chalet.
Housekeeping & dedicated concierge
Our team personalizes your stay and takes care of every need.
See more

In Val d'Isère,
at the top of Le Fornet.

Fornet cable car → 80 m · less than 3 min walk
Town centre in 5 min → free daytime shuttle every 5 minutes
Elevation : Upper Fornet → 1960 m
Val d'Isère
Val
d'Isère

A question?
Write to us.

For any enquiry about Les Terrasses —
availability, rates, or simply to learn more —
our team will get back to you promptly.